
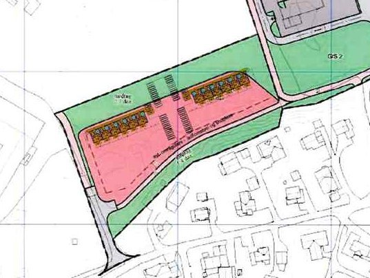
Orkdal kommune er i sin fulle rett til å bygge fem såkalte rusboliger i Moan. Det slår fylkesmannen fast. Fylkesmannen har avvist en klage fra to naboer. Skissen viser mulig utbygging i Moan.
Klagen gjelder en reguleringsplan for området mellom Moan og Sponplaten vedtatt i fjor. Den har blitt liggende ved en misforståelse. Planene i Moan har versert i en årrekke. De har vært omstridt like lenge. Kort sagt har protestene gått på to forhold: 1. Frykt for en ghetto med rusmisbruk og kriminalitet. Kommunens opprinnelig plan var å bygge det Orkdal kommune selv kalte fem "rusboliger" inntil det etablerte boligområdet. Fra før av har kommunen botilbud av samme type i nærheten. 2. Frykt for trafikksikkerheten i Geitastrandveien. Moan Hageby Planene er endret mange ganger. Rusboligene er omdøpt til omsorgsboliger, og prosjektet "Endelig Heim" omdøpt til "Moan Hageby". Det siste gjenspeiler at Orkdal kommune vil integrere omsorgsboligene i et nytt boområde med ca 20 nye boenheter på den 7,5 mål store tomta. Vil selge Etter hvert har det oppstått tvil om det i det hele tatt er bruk for omsorgsboligene. Kommunens siste plan er å selge hele tomta til høystbydende over 4,5 millioner kroner - med en påfølgende plikt til å bygge ut området i løpet av to år. Det er uklart om noen kjøper med disse betingelsene.
Reguleringsplanen forutsetter at Geitastrandveien får fortau, og at mesteparten av trafikken skal komme via en ny vei ved OTI. Fylkesmannen er enig med kommunen i at trafikksikkerheten ivaretas.
Forstår usikkerhet Fylkesmannen forstår at naboer kan være usikre på hvordan omsorgsboligene for rusmisbrukere vil påvirke bomiljøet, men finner at kommunens saksbehandling har vært grundig og forsvarlig.
Kommunestyret har fattet en lovlig beslutning. Det har skjedd ved å veie behovet for omsorgsboliger opp mot mulige ulemper for naboene, heter det. 
Moan er et attraktivt boligområde som kan bli utvidet vestover mot Sponplaten.
Publisert 11.10.2013 |