
Fylkesmannen (staten) nekter Orkdal kommune å vedta utvidet havn på Grønøra Øst slik planen er nå. Årsak: Fare for at bomiljø på Nerøra blir ødelagt av støy. Fylkesmannen krever: * Konkrete tiltak som kan gjennomføres mot støy fra Havna. * Bevis på at tiltakene vil virke.
Fylkesmannens advarsel for Nerøra er en såkalt innsigelse. Orkdal kommune/Havna må komme med bedre støytiltak før kommunen eventuelt får lov til å vedta planene. Også for Grønøra Vest - mot Råbygda - er det nedlagt innsigelse. Her går de alvorligste innvendingene på tap av naturverdier og manglende utredning av annen tomt for havn. For lettvint støyrapport Om Grønøra Øst/Nerøra/Gammelosen skriver Fylkesmannen i korte trekk: - Swecos støyrapport, laget på oppdrag fra Havna, viser at 14-18 boliger på Nerøra vil få for mye støy fra selve havnedriften (trafikk mm. er ikke tatt med).
- Det må gjøres avbøtende tiltak for å sikre tilfredsstillende boforhold for naboene.
- Rapporten beskriver en del mulige tiltak, og kommunen vil ha støyskjerm.
MEN: - Det er ikke dokumentert at støyskjerm - eller de andre tiltakene - vil hjelpe.
- Det er ikke avklart om foreslåtte tiltak kan gjennomføres.
Derfor krever Fylkesmannen, som kontrollerer at kommunen følger lover og regler: 1. Det må konkrete støytiltak inn i planen. 2. Det må dokumenteres at disse tiltakene vil gi redusert støy.
Her - utenfor Gammelosen - vil Havna fylle opp et areal tilsvarende to fotballbaner. I år etter år har støyende havnedrift pågått på Grønøra Øst uten noen forsøk på skjerming.
Sweco-rapporten fra mai i fjor er omstridt, særlig fordi den kun beregner støy fra havnedriften. Det totale støybildet på Orkanger er ikke kartlagt.
Orkanger Vel har avgitt høringsuttalelse og pekt på de samme problemene som Fylkesmannen nå tar opp. 1. Vi vet ikke om skisserte tiltak vil virke. 2. Vi vet heller ikke om de kan gjennomføres. Forbud mot nattedrift? Sweco/Havna foreslår blant annet forbud mot spoling av rør om natta. Men dette er en virksomhet et annet selskap (Technip) allerede driver på natt. Det er uklart om Orkdal vil/kan stoppe driften. Plankegjerde Havna foreslår et plankegjerde/støyskjerm med trær foran som vern mot bråk. Fylkesmannen påpeker at det ikke er dokumentert at et slikt gjerde vil hjelpe beboerne på Nerøra. Jordvoll Orkanger og Nerøra velforeninger krever en jordvoll med trær minst på høyde med den langs Gammelosen. En voll vil imidlertid legge beslag på mye mer areal (trolig 15 meters bredde) enn de ca 5 meter kommunen og Havna så langt har lagt opp til. Hittil har det vært flertall i kommunestyret for å la Havna bygge ut 15 dekar mot Nerøra/Gammelosen - 50 meter bredde/300 meter lengde. Havneområdet vil da komme ca 200 meter fra de nærmeste boligene på Nerøra. Her er det meningen å drive den aktiviteten Havna hevder støyer mest; håndtering av rør. Vil vedta planen fort Orkdal kommune legger opp til hurtigbehandling av kommunens nye arealplan - inkludert regulering til storhavn både mot Nerøra og Råbygda/Gjølme. Tidsplanen sier endelig vedtak i kommunestyret allerede 24. september, uten at Orkdal kommune har sikret seg noen garantier for hjelp til bedre vegløsninger mv. I kommuneplanens samfunnsdel har det samme kommunestyret vedtatt å gi innsats for folkehelse og mot støy topp prioritet. 
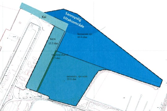
Havnas forslag for Grønøra Øst. Lyseblått er utbygging i sjøen mot Terna/Gammelosen. Den grønne streken markerer en 5 meter bred korridor et stykke ut mot fjorden. Nerøra Vel har diskutert andre løsninger med Havna, og oppfatter dette siste utspillet som et løftebrudd.
Publisert 19.08.2014 |