
Orkdal kommune ønsker å bygge et stort næringsbygg for utleie bak OTI-sentret. Isfjord Norway (fiskeforedling) er taktuell leietaker. Bedriften har over 100 ansatte. Den må flytte fra lokalene sine på Utleira i Trondheim.
Isfjord Norway flytter fordi området der selskapet leier produksjonslokale er omregulert til boligformål. I tillegg er lokalene lite praktiske. Orkdal kommune kan skreddersy et bygg for Isfjord Norway. Kommunen søker nå selv om dispensasjon fra kommuneplanen for å plassere bygget.
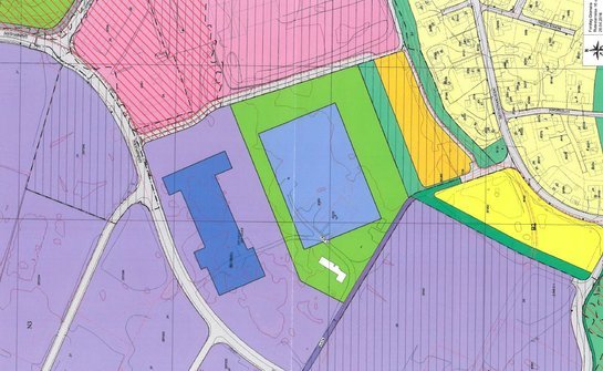
Bedre for Moan Det skyldes at den store tomta bak OTI-sentret delvis er regulert til næring og delvis til offentlig formål (blant annet med tanke på skole). Kommunen ønsker å plassere næringsbygget på langs mot Grønørveien, lengst unna bebyggelsen i Moan. Da kommer det delvis inn på arealet til offentlig formål. Til gjengjeld kan mer tomt til offentlig formål ligge inn mot den planlagte Moan Hageby. Enhetsleder Nils Arne Sletvold skriver at dette trolig gir bedre boforhold med mindre støy/trafikk, og at det er ønskelig av hensyn til leietaker: Utvidelsesmuligheter og transport. Lager delikatesser Isfjord Norway foredler ca 5000 tonn laks og ørret hvert år. Nå kan bedriften komme til Orkanger - nesten 90 år etter at fiskeforedlingsbedriften "Hermetikken" ble nedlagt. Les om Isfjord Norway. 
Skisse av planområdet med OTI-området i det skraverte feltet øverst.
Publisert 02.06.2016 |